Villa a schiera in vendita

Verona, Via Luigi Negrelli - Quartiere Stadio
€ 660.000
Prezzo aggiornato
6 locali 6 locali
233 Mq 233 Mq
3 bagni 3 bagni

Villa a schiera in vendita

Verona, Via Luigi Negrelli - Quartiere Stadio

Descrizione annuncio

STADIO – Elegante porzione di villa schiera d'angolo con ampio giardino.

Nel cuore del quartiere Stadio, in posizione tranquilla e comoda al centro di Verona e a tutti i principali servizi, proponiamo suggestiva villa a schiera d'angolo sviluppata su tre livelli.

Al piano terra si trova una luminosa ed ampia zona giorno che comprende soggiorno con vetrate, cucina abitabile e bagno di servizio con accesso diretto al giardino e lavanderia.
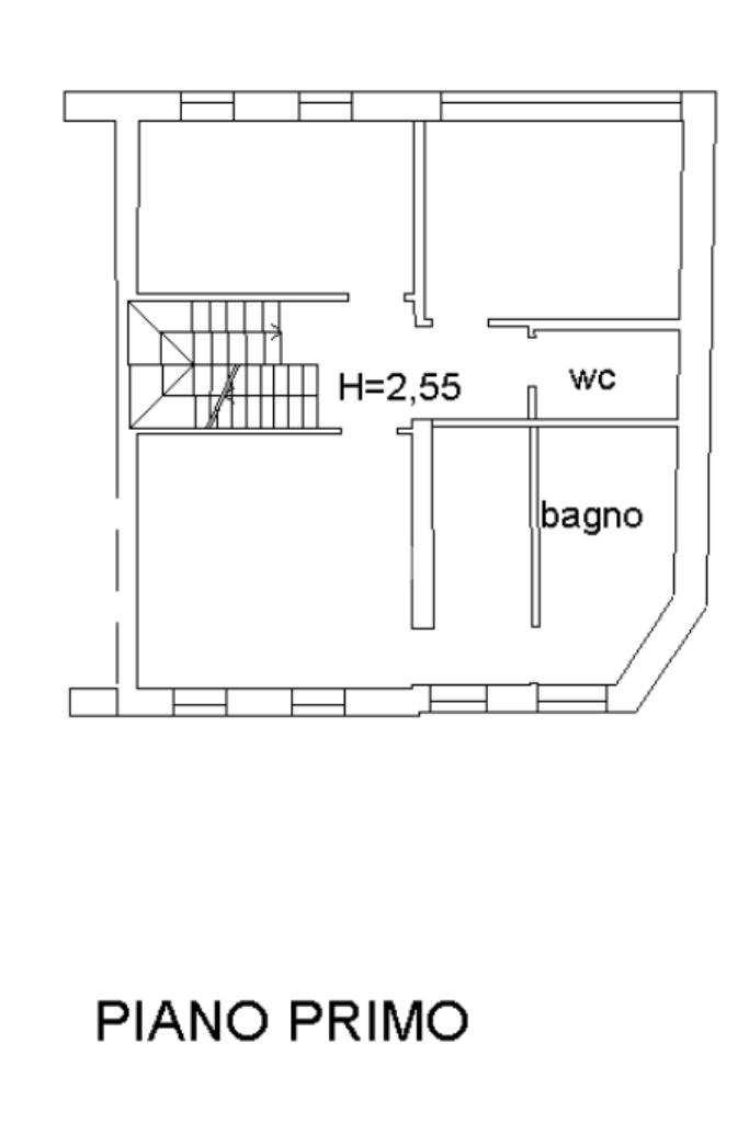
Il primo piano ospita la zona notte con tre camere da letto, di cui una con disbrigo e bagno privato, e un ulteriore bagno cieco.
Al secondo piano troviamo un ampio locale sottotetto che offre ulteriori spazi versatili ideali come studio, area relax o stanza hobby.

Completano la proprietà un meraviglioso giardino privato su tre lati, che regala riservatezza e un incantevole spazio verde da vivere tutto l’anno, e un ampio garage di 66 mq al piano interrato, comodo per più auto e per uso deposito.

Mostra tutto

Nelle vicinanze

Trasporto pubblico Trasporto pubblico
stazione di Verona Porta Nuova
stazione di Verona Porta Nuova
1,4 Km
Via Vitruvio, 2A
Via Vitruvio, 2A
160 m
Via Longhena 40
Via Longhena 40
160 m
Ricariche auto elettriche Ricariche auto elettriche
AGSM - Via Porta San Zeno
600 m
Esselunga di corso Milano
1,3 Km
AGSM - Piazza Arsenale
1,3 Km
Hotel Giberti
1,4 Km
naturasì Corso Milano | Driwe
1,5 Km
Scuole Scuole
Scuola Primaria Antonio Vivaldi
250 m
Scuola Primaria Giovanni Uberti
560 m
Scuola Media Aldo Fedeli
650 m
Scuola Elementare Monsignor Chiot
760 m
Scuola Primaria "Berto Barbarani"
870 m
Farmacia Farmacia
Parafarmacia Isabella
170 m
Farmacia dell'Immacolata
330 m
Farmacia Borgo Milano
480 m
Farmacia Comunale Olimpia
680 m
Farmacia San Marco
840 m
Ospedali Ospedali
Ospedale Civile Maggiore
1,9 Km
Supermercati Supermercati
Migross
260 m
Lidl
390 m
A&O
500 m
Conad
600 m
Natura Si
810 m
Negozi Negozi
Negozi
170 m
Forum Boutiques
220 m
The Firm
450 m
Panificio Volpato
460 m
La Cravatteria
490 m
Bar Bar
Bar Palazzetto
150 m
Atipico lounge bar
300 m
Iter Bar
330 m
The Den Pub
370 m
Iris Bar
580 m
Ristoranti Ristoranti
Stella D'Oriente
130 m
Osteria al Borgo
150 m
Pizzeria da Roby
230 m
Hutong
280 m
Doppio zero
320 m
Mostra tutto

Caratteristiche

Rif.:
61138213
Piano:
Su più livelli di 3
Totale piani:
3
Box:
1
Camere da letto:
3
Arredamento:
Assente
Mostra tutto
Prezzo Prezzo
€ 660.000
Rata mutuo Rata mutuo
€ 3.111 / mese
Spese annue Spese annue
€ 0
Proponi il tuo prezzoProponi il tuo prezzo
Immobile valutato con T·Valuta

Classe Energetica

G
G
G
G
G
G
G
G
G
EP globale non rinnovabile:
178.40 kW h/m² anno
EP invernale del fabbricato:
EP estiva del fabbricato:
Anno di costruzione:
1967
Riscaldamento:
Autonomo
Tipo impianto:
A radiatori
Tipo alimentazione:
Metano

Prezzo ridotto di €1 (8%%)

Ti interessa visionare l'immobile?

Fissa un appuntamento  Fissa un appuntamento

Richiedi informazioni

Clicca su Leggi per aprire l'informativa
* Questi campi sono obbligatori

Calcola il tuo mutuo

Semplice e senza impegno
Anticipo

( % )
Mutuo

( % )

pochi semplici passi

inserisci i tuoi dati
Questionario completato
Grazie per aver richiesto un appuntamento senza impegno con un nostro Consulente del Credito e Assicurativo.

Hai inserito correttamente tutti i dati necessari e a breve riceverai una e-mail con un link da convalidare per inviare i tuoi dati.
Affiliato
Fc Stadio Immobiliare Srl
Via Luigi Negrelli, 61 37138 Verona (VR)
Via Luigi Negrelli, 61 37138 Verona (VR)
Zona: Quartiere Stadio
Mostra su mappa
Orari: dal lunedì al venerdì: mattino 09.00 - 12.30 pomeriggio 15.00 - 19.30. Sabato mattina 09.00 - 12.30. Sabato pomeriggio e domenica solo su appuntamento.
Affiliato
Fc Stadio Immobiliare Srl
Via Luigi Negrelli, 61 37138 Verona (VR)

2026 Tecnocasa Franchising S.p.A. - P. IVA 08365160152 - Via Monte Bianco 60/A 20089 Rozzano (MI). Ogni agenzia ha un proprio titolare ed è autonoma. Privacy policy | Policy utilizzo | Cookie policy