Trilocale in vendita

Verona, Via S. Marco - Quartiere Stadio
€ 570.000
3 locali 3 locali
134 Mq 134 Mq
2 bagni 2 bagni

Trilocale in vendita

Verona, Via S. Marco - Quartiere Stadio

Descrizione annuncio

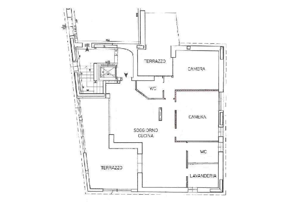
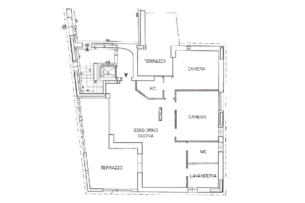
STADIO - In piccolo contesto condominiale del 2013, proponiamo splendido e luminoso trilocale di 134 mq situato al secondo e ultimo piano. L'intero appartamento è caratterizzato da travi in legno a vista e da ambienti di ampia metratura. La zona giorno, spaziosa e luminosa, affaccia su un terrazzo abitabile; la zona notte comprende due camere da letto, di cui una con accesso al secondo terrazzo, due bagni finestrati e una comoda lavanderia. Completa la proprietà un garage doppio di 43 mq al piano interrato. Questa soluzione è ideale per chi cerca comfort, tranquillità e spazi generosi in una zona servita e comoda ai principali collegamenti.

La zona giorno, spaziosa e luminosa, si affaccia su un terrazzo abitabile; la zona notte comprende due camere da letto, di cui una con accesso al secondo terrazzo, oltre a due bagni finestrati e una comoda lavanderia.

Completa la proprietà un garage doppio di 43 mq al piano interrato.

Soluzione ideale per chi cerca comfort, tranquillità e spazi generosi in una zona servita e comoda ai principali collegamenti.

Mostra tutto

Nelle vicinanze

Trasporto pubblico Trasporto pubblico
stazione di Verona Porta Nuova
stazione di Verona Porta Nuova
1,6 Km
Viale Manzoni 21/B I
Viale Manzoni 21/B I
60 m
Viale Manzoni 26 II
Viale Manzoni 26 II
70 m
Ricariche auto elettriche Ricariche auto elettriche
AGSM - Via Porta San Zeno
530 m
Esselunga di corso Milano
1,2 Km
AGSM - Piazza Arsenale
1,3 Km
naturasì Corso Milano | Driwe
1,4 Km
Hotel Giberti
1,5 Km
Scuole Scuole
Scuola Primaria Antonio Vivaldi
300 m
Scuola Primaria Giovanni Uberti
440 m
Scuola Media Aldo Fedeli
540 m
Scuola Primaria "Berto Barbarani"
740 m
Scuola Elementare Monsignor Chiot
940 m
Farmacia Farmacia
Farmacia dell'Immacolata
280 m
Farmacia Borgo Milano
310 m
Parafarmacia Isabella
330 m
Farmacia San Marco
700 m
Farmacia S. Anna
770 m
Ospedali Ospedali
Ospedale Civile Maggiore
1,8 Km
Supermercati Supermercati
Lidl
230 m
Migross
440 m
Conad
570 m
A&O
680 m
Eurospar
870 m
Negozi Negozi
Forum Boutiques
50 m
Panificio Volpato
290 m
La Cravatteria
310 m
Black Brain
320 m
Negozi
340 m
Bar Bar
Iter Bar
280 m
Bar Palazzetto
320 m
Atipico lounge bar
470 m
Chiosco San Zeno
510 m
The Den Pub
550 m
Ristoranti Ristoranti
Osteria al Borgo
140 m
Doppio zero
230 m
La Biga
240 m
Hutong
260 m
Stella D'Oriente
260 m
Mostra tutto

Caratteristiche

Rif.:
61132012
Piano:
2 di 2 con ascensore (ultimo Piano)
Box:
1
Terrazzi:
2
Camere da letto:
2
Arredamento:
Assente
Mostra tutto
Prezzo Prezzo
€ 570.000
Rata mutuo Rata mutuo
€ 2.691 / mese
Proponi il tuo prezzoProponi il tuo prezzo
Immobile valutato con T·Valuta

Classe Energetica

Questo immobile è esente da classe energetica
Anno di costruzione:
2013
Riscaldamento:
Autonomo
Tipo impianto:
A pavimento
Tipo alimentazione:
Metano

Ti interessa visionare l'immobile?

Fissa un appuntamento  Fissa un appuntamento

Richiedi informazioni

Clicca su Leggi per aprire l'informativa
* Questi campi sono obbligatori

Calcola il tuo mutuo

Semplice e senza impegno
Anticipo

( % )
Mutuo

( % )

pochi semplici passi

inserisci i tuoi dati
Questionario completato
Grazie per aver richiesto un appuntamento senza impegno con un nostro Consulente del Credito e Assicurativo.

Hai inserito correttamente tutti i dati necessari e a breve riceverai una e-mail con un link da convalidare per inviare i tuoi dati.
Affiliato
Fc Stadio Immobiliare Srl
Via Luigi Negrelli, 61 37138 Verona (VR)
Via Luigi Negrelli, 61 37138 Verona (VR)
Zona: Quartiere Stadio
Mostra su mappa
Orari: dal lunedì al venerdì: mattino 09.00 - 12.30 pomeriggio 15.00 - 19.30. Sabato mattina 09.00 - 12.30.Sabato pomeriggio e domenica solo su appuntamento.
Affiliato
Fc Stadio Immobiliare Srl
Via Luigi Negrelli, 61 37138 Verona (VR)

2025 Tecnocasa Franchising S.p.A. - P. IVA 08365160152 - Via Monte Bianco 60/A 20089 Rozzano (MI). Ogni agenzia ha un proprio titolare ed è autonoma. Privacy policy | Policy utilizzo | Cookie policy